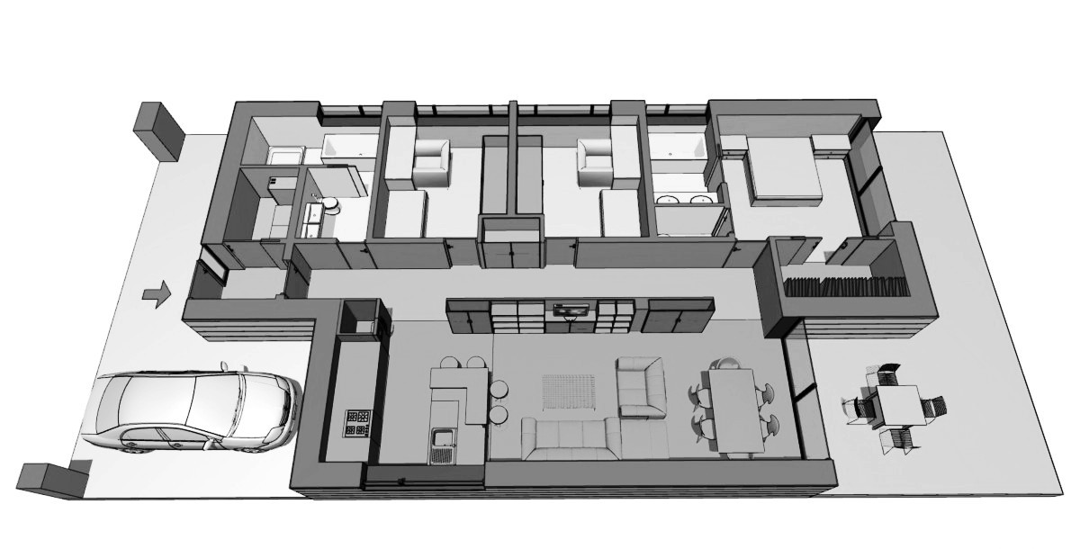
Casa pasiva de cubierta plana y múltiples opciones de acabado exterior: SATE, piedra, listones de madera, acabados técnicos o industriales…
Con porche y garaje abiertos. Diseño de tres habitaciones.
Adaptable a sus necesidades.
Casa pasiva de cubierta plana y múltiples opciones de acabado exterior: SATE, piedra, listones de madera, acabados técnicos o industriales…
Con porche y garaje abiertos. Diseño de tres habitaciones.
Adaptable a sus necesidades.
22 mayo 2018